Санкт-Петербург, Полюстровский проспект, 28
Площадь
Жилая
Кухня
Отделка
Класс жилья
Комнат
Номер кв.
Этаж
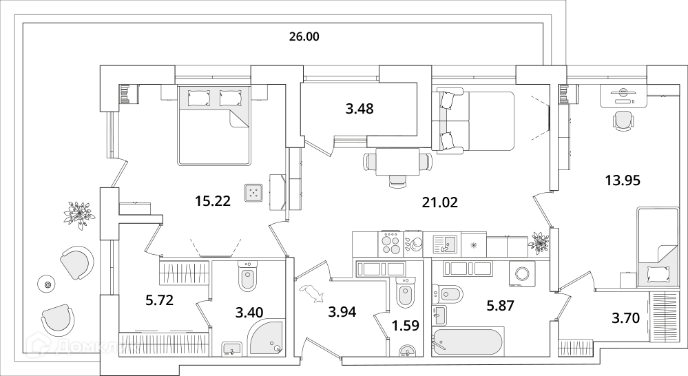
Продается 2-комнатная квартира в современном жилом комплексе "ЖК БелАрт" 🏢. Квартира расположена на 19-м этаже 24-этажного дома. Прекрасный выбор для семьи.
Чтобы забронировать эту квартиру бесплатно и зафиксировать цену — позвоните нам прямо сейчас! 📞
ЖК «БелАрт» — современный квартал комфорт-класса, расположенный в Калининском районе Санкт-Петербурга, в шаговой доступности от станции метро «Лесная». В состав проекта входят пять корпусов переменной этажности. Уникальная архитектура, выверенная геометрия фасадов, грамотное зонирование общественных пространств и придомовой территории, продуманные планировки квартир – здесь всё на высоте. Расположение, транспортная доступность Жилой комплекс «БелАрт» строится на Полюстровском проспекте. До станции метро «Лесная» – 1,4 км, а до Финляндского вокзала – 4,5 км. Ближайшие остановки общественного транспорта – всего в 50 метрах от комплекса. Выезд на КАД находится в 7,5 км, на 3СД – в 9,5 км, а до центра города – всего 9 км. «БелАрт» расположен в непосредственной близости от крупных транспортных магистралей: Полюстровского проспекта, проспекта Маршала Блюхера, Большого Сампсониевского проспекта, Кантемировской улицы, Ушаковской и Выборгской набережных. Инфраструктура Калининский район Санкт-Петербурга — развитый район с налаженной инфраструктурой. На расстоянии 1–2 км от квартала работают более 10 детских садов и 7 школ. Близость к метро и центру делает доступными лучшие учебные заведения. В окружении комплекса уже работают различные магазины, медицинские клиники и многое другое. Рядом со станцией метро «Лесная» расположен торгово-развлекательный комплекс «Европолис». В его галерее представлены магазины ведущих российских и международных брендов, а также многозальный кинотеатр «Мираж-Синема», кафе, рестораны и уникальный семейный парк Angry Birds Activity Park. На первых этажах домов жилого комплекса «БелАрт» откроются продуктовые магазины, пекарни, салоны красоты. В стилобатной части домов спроектированы подземные паркинги. Архитектура «БелАрт» является частью международного проекта по созданию симметричных кварталов в Санкт-Петербурге и Минске. Название жилого комплекса вдохновлено художественной галереей в Минске. В состав проекта входят пять домов переменной этажности (от 12 до 23 этажей). Благодаря грамотному расположению корпусов в квартирах будет достаточно света, а из большинства окон откроются впечатляющие виды на окрестности. Особое внимание уделено обустройству мест общего пользования в парадных появятся зоны для отдыха и помещения для хранения велосипедов и колясок. В закрытых благоустроенных дворах будут обустроены детские площадки, зоны для отдыха. Украшением квартала станет променад протяженностью почти 300 метров с фруктовым садом. Среди квартир комплекса есть уникальные лоты с террасами, мастер-спальнями и гардеробными. Квартиры на последних этажах имеют уникальные видовые характеристики, увеличенную площадь остекления и высокие потолки (от 3 метров). Каждый сможет подобрать планировку под свой уклад жизни. Например, есть квартиры с большими гардеробными и кухнями-гостиными. А ценителям приватности понравятся мастер-спальни с собственным санузлом. Варианты отделки Полная отделка Comfort в современном дизайне. Предчистовая отделка (white box) – будут выполнены все грязные работы, покупателю останется нанести последние штрихи. Квартиру также можно приобрести без отделки.
Срок сдачи: 4 кв. 2023 г.
Срок сдачи: 4 кв. 2023 г.
Площади квартир
Тип жилья
Этажность
Класс жилья
Корпусов
Стены