Санкт-Петербург, Новоизмайловское, Строящийся жилой дом
Площадь
Жилая
Кухня
Отделка
Класс жилья
Комнат
Номер кв.
Этаж
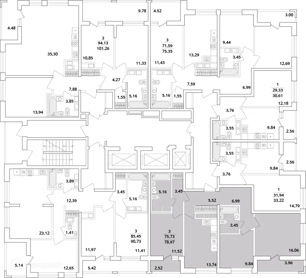
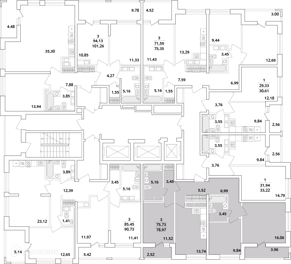
Предлагается 3-комнатная квартира в востребованном жилом комплексе "ЖК "Cube (Кьюб)"" 🏢. Квартира расположена на 15-м этаже 19-этажного дома. Отличный вариант для комфортной жизни.
Чтобы забронировать эту квартиру бесплатно и проверить актуальную стоимость — свяжитесь с нами прямо сейчас! 📞
Cube — новый жилой комплекс в Московском районе Санкт-Петербурга. Сочетает в себе все возможные преимущества — от удачного расположения и развитой инфраструктуры до благоустроенной территории и эргономичных планировок. В состав проекта входят пять корпусов переменной этажности (от 12 до 18 этажей). В закрытых благоустроенных дворах обустроят детские площадки, зоны для отдыха. На территории предусмотрен детский сад на 100 мест. Инфраструктура Инфраструктура района, где находится Cube, хорошо развита: рядом есть супермаркеты, школы, детские сады, спортивные центры, больницы. В 2 км выезды на КАД и ЗСД, за 10 минут можно доехать до станции метро «Московская» или до гипермаркетов и торгово-развлекательных комплексов на Пулковском шоссе. Еще одно преимущество расположения Cube — близость к паркам: в 2 км от комплекса находятся Пулковский парк, парки Победы и Авиаторов. Здесь проходят праздничные мероприятия и гуляния. От комплекса за полчаса можно доехать на машине до Павловска, Пушкина, Петергофа, чтобы погулять и сходить на экскурсии. Купить продукты, выпить кофе можно будет и на территории комплекса Cube: магазины, кафе, службы сервиса откроются на первых этажах домов. Придомовая территория будет свободна от машин, обеспечена видеонаблюдением и системой контроля доступа. Для жильцов предусмотрен подземный паркинг, для гостей — наземная парковка. Во дворах появятся детские площадки — отдельно для малышей и для детей постарше, места для отдыха, где можно будет посидеть в беседке. Для удобства жильцов вход в подъезд находится на уровне земли. На первых этажах спроектированы колясочные; во всех подъездах будут установлены скоростные бесшумные лифты. Архитектура Фасады жилого комплекса Cube выполнены из керамогранита серого, графитового и медного цветов. Расположение корпусов формирует два закрытых благоустроенных двора с детскими площадками и зонами для отдыха. Площадь квартир — от 17,9 до 75 кв. м, на выбор — от студий до 3-комнатных. Есть варианты с кухнями-гостиными, мастер-спальнями, гардеробными. Лоты на последних этажах имеют трехметровые потолки. Варианты отделки Полная отделка Comfort в современном дизайне. Предчистовая отделка (white box) – будут выполнены все грязные работы, клиенту останется нанести последние штрихи. Квартиру также можно приобрести без отделки.
Срок сдачи: 2 кв. 2024 г.
Срок сдачи: 2 кв. 2024 г.
Площади квартир
Этажность
Класс жилья
Корпусов
Стены