Санкт-Петербург, Юнтолово, Жилой комплекс Тайм Сквер
Площадь
Жилая
Кухня
Отделка
Класс жилья
Номер кв.
Этаж
Предлагается Студия в новом жилом комплексе "ЖК "Тайм Сквер"" 🏢
Квартира расположена на 9-м этаже 14-этажного дома.
Отличный вариант для инвестиций.
Продуманная планировка: 📐
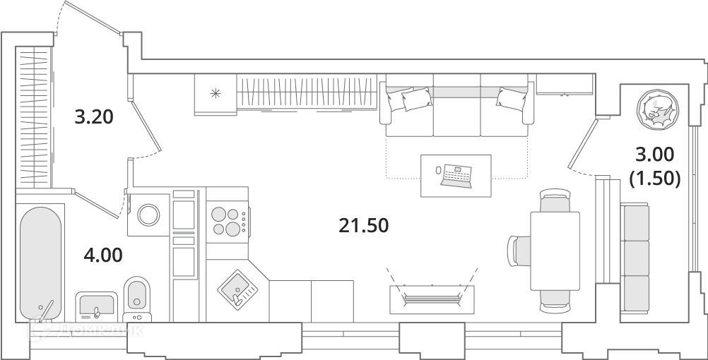
✅ Общая площадь: 30.2 м².
✅ Просторная жилая площадь: 21.5 м².
✅ Кухня: 0 м² — идеальна для семейных ужинов.
Особенности квартиры: ✨
🔧 Вариант отделки: без ремонта. Готовая база для вашего интерьера.
🌞 Большие окна наполняют помещения естественным светом.
🌿 Класс жилья: Комфорт — высокое качество строительства.
Выгодные условия покупки: 💰
💳 Ипотека от 57 221 руб/мес.
🏦 Доступны льготные программы господдержки.
🤝 Покупка напрямую от застройщика гарантирует спокойствие.
Чтобы узнать подробности и проверить актуальную стоимость — позвоните нам прямо сейчас! 📞
Параметры новостройки в ЖК "Тайм Сквер":
• Номер квартиры - 090
• Вариант отделки - без ремонта
• Площадь - 30.2 м²
• Жилая Жилая - 21.5 м²
• Площадь кухни - 0 м²
• Класс жилья - Комфорт
• Комнат - Студия
• Этаж - 9
• Дом - 14-этажный
Полезная информация о ЖК "Тайм Сквер"
Жилой комплекс «Тайм Сквер» строится в Приморском районе Санкт-Петербурга. Расположение подходит как автомобилистам, так и тем, кто предпочитает общественный транспорт. Рядом с домами находятся выезды на КАД и Западный скоростной диаметр. До станции метро «Комендантский проспект» можно добраться за 30 минут на автобусе.
Инфраструктура
В «Тайм Сквер» появится собственная инфраструктура. В коммерческих помещениях на первых этажах корпусов запланированы магазины, салоны красоты, кафе, рестораны и другие сервисы. Предусмотрен детский сад на 100 мест. В закрытом внутреннем дворе будут обустроены зоны для отдыха, игровые и спортивные площадки. Автовладельцев порадует отапливаемый паркинг, спуститься в который можно будет на лифте.
Еще одно преимущество «Тайм Сквер» — его близость к природе. Окна домов выходят на Юнтоловский лесопарк. За 20 минут на машине жители комплекса доберутся до парка 300-летия Петербурга и Финского залива. А на «Лахта Центр» получится полюбоваться из окон некоторых квартир.
Архитектура
Жилой комплекс состоит из 13 домов высотой 13 этажей. Фасады отделаны штукатуркой и клинкерной плиткой. Благодаря графитовому цвету и ассиметричному расположению окон дома выглядят строго, но в то же время оригинально. Расположение домов перекликается с названием проекта. Каждый из корпусов, находящихся по периметру участка, символизирует отдельный час на циферблате, а центральный дом (корпус 0) обозначает место пересечения стрелок. Благодаря этому с высоты комплекс будет напоминать огромные часы.
Варианты отделки
Доступны квартиры разной планировки и площади. Жильцы смогут выбрать из трех вариантов отделки. Чистовую дизайнерскую стоит взять тем, кто хочет поскорее заселиться. Предчистовая (white box) подойдет желающим выбрать цвет стен и плитки — самые грязные и шумные работы выполнит застройщик. А квартира без отделки — хороший вариант для тех, кто хочет сделать масштабный ремонт самостоятельно.
Срок сдачи: 2 кв. 2024 г.
Срок сдачи: 2 кв. 2024 г.
Площади квартир
Этажность
Отделка
Класс жилья
Количество корпусов
Тип стен