Санкт-Петербург, Полюстрово, Жилой комплекс Академик
Площадь
Жилая
Кухня
Отделка
Класс жилья
Комнат
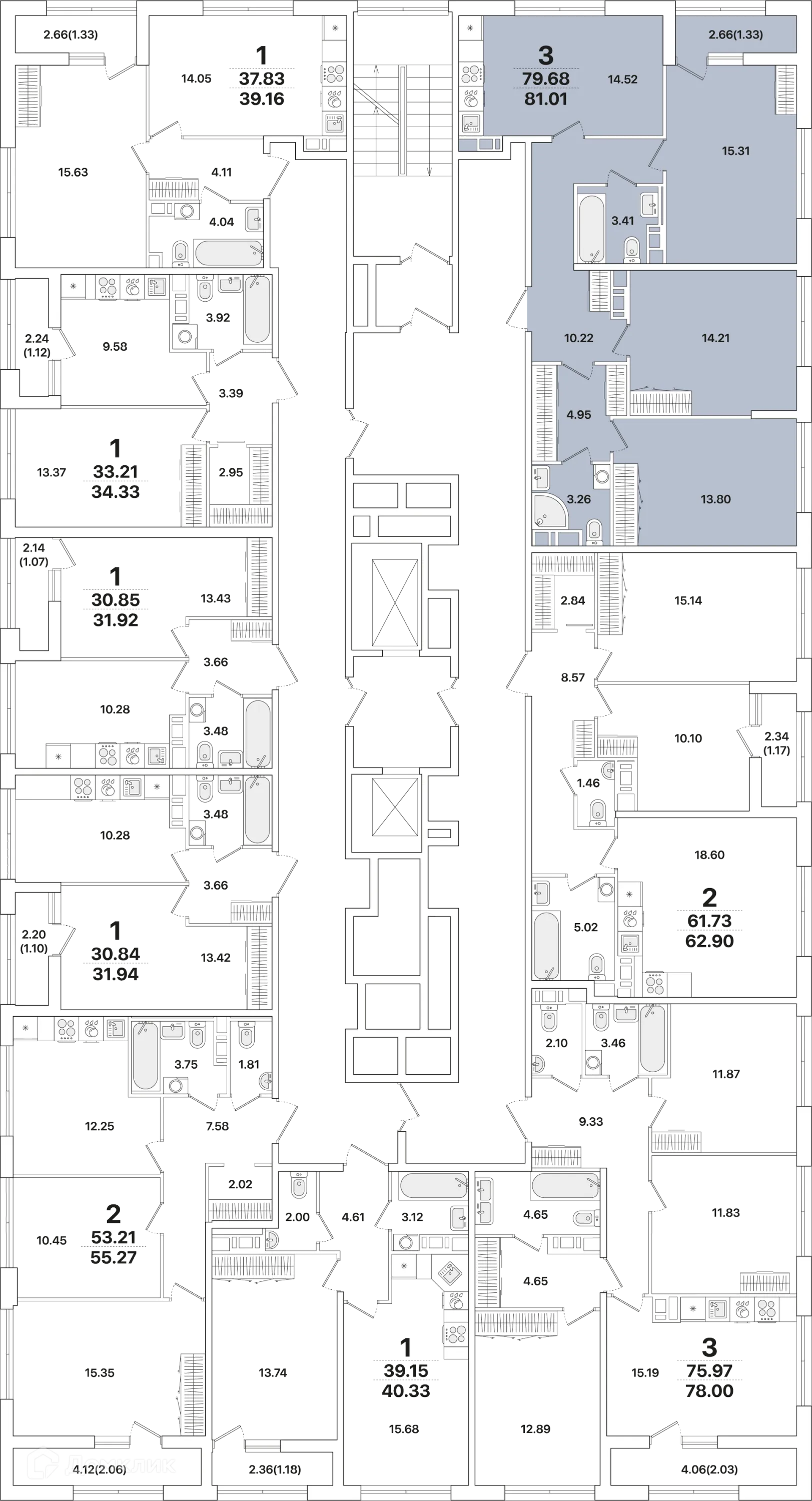
Номер кв.
Этаж
Продается 3-комнатная квартира в востребованном жилом комплексе "ЖК Академик" 🏢
Квартира расположена на 10-м этаже 13-этажного дома.
Отличный вариант для семьи.
Функциональная планировка: 📐
✅ Общая площадь: 81.01 м².
✅ Светлая жилая площадь: 43.32 м².
✅ Кухня: 14.52 м² — идеальна для семейных ужинов.
Преимущества квартиры: ✨
🔧 Вариант отделки: без ремонта. Это позволит вам сразу приступить к ремонту.
🌞 Большие окна наполняют помещения естественным светом.
🌿 Класс жилья: Комфорт — современные технологии.
Финансы и ипотека: 💰
💳 Ипотека от 139 191 руб/мес.
🏦 Подходит под семейную и IT ипотеку.
🤝 Эскроу-счета гарантирует спокойствие.
Чтобы узнать подробности и зафиксировать цену — позвоните нам прямо сейчас! 📞
Параметры новостройки в ЖК Академик:
• Номер квартиры - 350
• Вариант отделки - без ремонта
• Площадь - 81.01 м²
• Жилая Жилая - 43.32 м²
• Площадь кухни - 14.52 м²
• Класс жилья - Комфорт
• Комнат - 3-комнатная квартира
• Этаж - 10
• Дом - 13-этажный
Полезная информация о ЖК Академик
«Академик» — жилой комплекс комфорт-класса на Пискаревском проспекте в Красногвардейском районе Санкт-Петербурга. В состав проекта входят три секции, объединенные общим стилобатом, два отдельно стоящих корпуса, а также здание для детского сада на 80 мест и начальной школы на 100 мест.
Среди преимуществ проекта – небольшая этажность (12 этажей), закрытая дворовая территория с детскими и спортивными площадками, зонами для отдыха, свой пруд во дворе. В жилом комплексе предусмотрен подземный паркинг, лифты с любого этажа 1 очереди спускаются в подземный отапливаемый паркинг на 300 машиномест, который дополнит открытая гостевая стоянка.
Расположение, транспортная доступность
В 15 минутах езды от жилого комплекса находится станция метро «Академическая». Близость к КАД обеспечивает удобный доступ в любую точку Петербурга и в пригороды (Всеволожск, Токсово и др.). До ж/д станции «Ручьи» 450 м.
Красногвардейский район – район с уже сложившейся инфраструктурой. В радиусе 1.5 км две школы и 9 детских садов. В рамках реализации проекта запланировано строительство отдельно стоящего здания начальной школы на 100 мест и детского сада на 80 мест. Многочисленные организации дополнительного образования, спортивные клубы и секции.
Также в радиусе 1,5 км от объекта находятся 2 торгово-развлекательных комплекса и 3 гипермаркета.
На первых этажах домов откроются продуктовые магазины, пекарни, салон красоты, бытовые службы и кружки для детей.
В доме есть квартиры разных метражей – от студий до трехкомнатных, в том числе европланировки с просторной кухней-гостиной, а также лоты с мастер-спальнями. Квартиры на верхних этажах (10-м, 11-м и 12-м) имеют увеличенную площадь остекления и более высокие потолки (до 3 метров). Есть варианты с чистовой отделкой, предчистовой отделкой white box и без отделки.
Срок сдачи: 3 кв. 2025 г.
Срок сдачи: 3 кв. 2025 г.
Площади квартир
Этажность
Отделка
Класс жилья
Количество корпусов
Тип стен