Ленинградская область, Всеволожский муниципальный район, Мурино, Западный м-н, Ручьёвский проспект, 20
Площадь
Жилая
Кухня
Отделка
Класс жилья
Номер кв.
Этаж
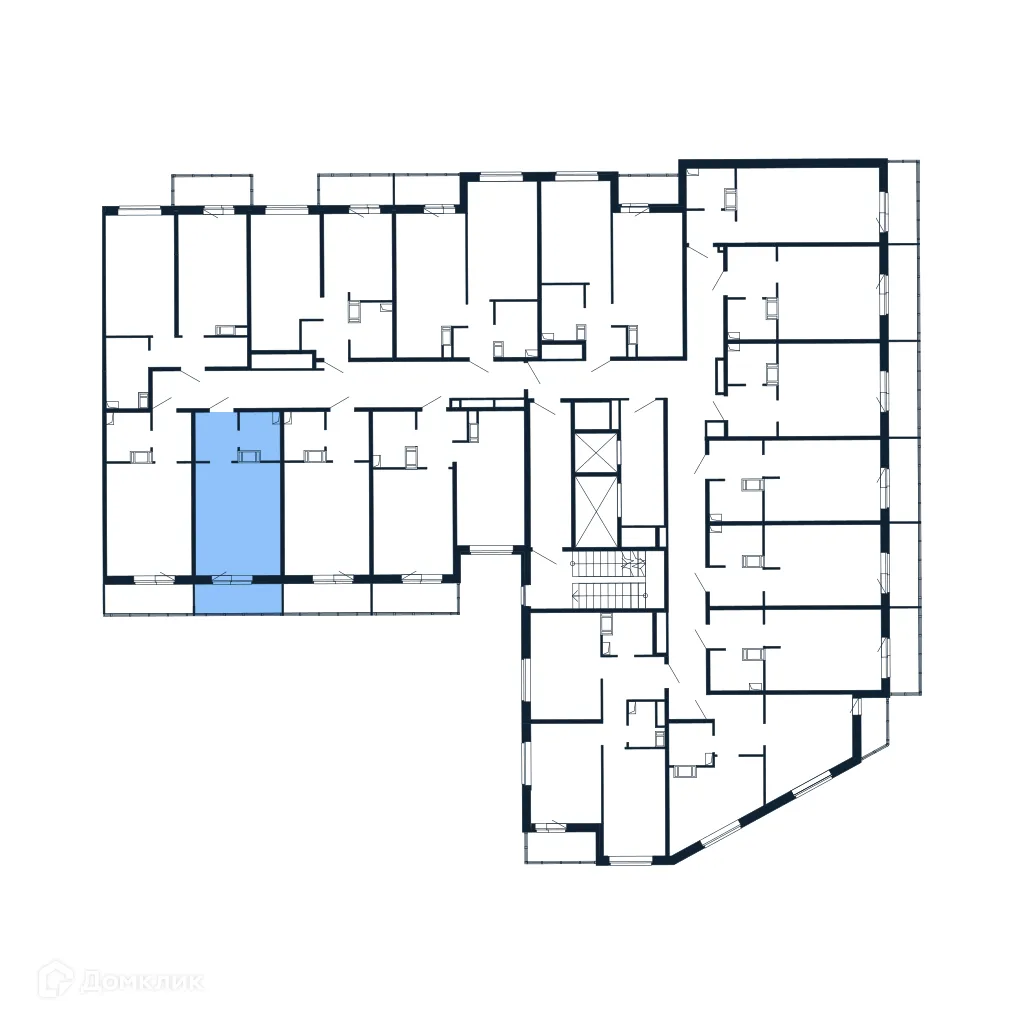
Продается Студия в современном жилом комплексе "ЖК "Полис ЛАВрики"" 🏢. Квартира расположена на 6-м этаже 13-этажного дома. Отличный вариант для семьи.
Чтобы узнать подробности и зафиксировать цену — свяжитесь с нами прямо сейчас! 📞
ЖК «Полис ЛАВрики» возводится в западном Мурино, современном благоустроенном пригороде Санкт-Петербурга. 12-этажный жилой квартал спроектирован в модном стиле скандинавского минимализма и отличается сдержанными цветовыми решениями. Датская философия и стиль жизнь хюгге легли в основу концепции комплекса, где вы почувствуете уют и защищенность. Уникальная концепция закрытых хюгге-дворов придется по вкусу и взрослым, и детям. Уютные перголы в скандинавском стиле, с деревянной уличной мебелью и камерным освещением, создают неповторимую дружескую атмосферу и позволяют открыть секрет датского счастья.
Срок сдачи: 3 кв. 2024 г.
Срок сдачи: 3 кв. 2024 г.
Площади квартир
Этажность
Класс жилья
Корпусов
Стены
87%
25%