Ленинградская область, Всеволожский муниципальный район, д. Новое Девяткино, Центральный м-н, Жилой комплекс “Мурино Space”
Площадь
Жилая
Кухня
Отделка
Класс жилья
Комнат
Номер кв.
Этаж
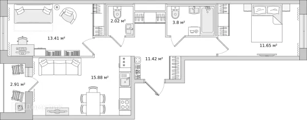
В продаже 2-комнатная квартира в новом жилом комплексе "ЖК "Мурино Space (Мурино Спэйс)"" 🏢. Квартира расположена на 16-м этаже 18-этажного дома. Прекрасный выбор для комфортной жизни.
Для бесплатного бронирования и проверить актуальную стоимость — позвоните нам прямо сейчас! 📞
Мурино Space — уютное и экологичное место, где уединенность и тишина идеально сочетаются с близостью к метро и к основным транспортным развязкам. До метро Девяткино 20 минут пешком! Всё для детей: Два детских сада и школа со стадионом Среди природы: Расположение в ближайшем пригороде, на живописном берегу реки Охта Безопасность: Огороженные дворы, система видеонаблюдения и контроля доступа на территорию Транспортная доступность: Недалеко выезд на КАД, станция метро
Срок сдачи: 4 кв. 2023 г.
Срок сдачи: 4 кв. 2023 г.
Площади квартир
Этажность
Класс жилья
Корпусов
Стены