Ленинградская область, Всеволожский муниципальный район, Мурино, Западный м-н, Планируемая застройка
Площадь
Жилая
Кухня
Отделка
Класс жилья
Комнат
Номер кв.
Этаж
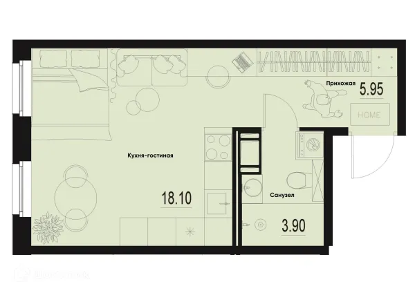
Продается 2-комнатная квартира в востребованном жилом комплексе "ЖК ID Murino III (Ай ди Мурино III)" 🏢. Квартира расположена на 2-м этаже 13-этажного дома. Отличный вариант для семьи.
Чтобы забронировать эту квартиру бесплатно и проверить актуальную стоимость — свяжитесь с нами прямо сейчас! 📞
iD Murino III — это клубный квартал комфорт-класса в динамично развивающемся районе Ленинградской области от компании Euroinvest Development. Проект реализуется в сегменте Urban, что означает лояльность ценовой политики застройщика при продаже недвижимости повышенного класса. Urban — это всегда более высокий уровень комфорта, чем вы ожидаете.
Срок сдачи: 4 кв. 2025 г.
Срок сдачи: 4 кв. 2025 г.
Площади квартир
Этажность
Класс жилья
Корпусов
Стены