Ленинградская область, Выборг, Центральный м-н, 2-я Южная улица, 8
Площадь
Жилая
Кухня
Отделка
Класс жилья
Комнат
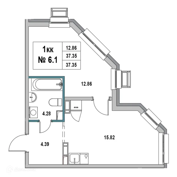
Номер кв.
Этаж
В продаже 1-комнатная квартира в востребованном жилом комплексе "ЖК Дом на ул.2-я Южная" 🏢. Квартира расположена на 2-м этаже 10-этажного дома. Прекрасный выбор для инвестиций.
Чтобы забронировать эту квартиру бесплатно и зафиксировать цену — свяжитесь с нами прямо сейчас! 📞
Современный и стильный многоквартирный жилой дом с подземной автостоянкой.Район строительства имеет развитую инфраструктуру (детские площадки, сады, школы, магазины) и характерен уникальным ценным ландшафтом, включающим в себя с одной стороны - парковую зону Батарейной горы, а с другой одну из основных автомагистралей города, построенную на границе двух крупных микрорайонов. Сочетание двух высотных 8-этажных объемов, похожих на два цветка, объединенных горизонтальным блоком, это архитектурная классика в современном исполнении.
Срок сдачи: 2 кв. 2025 г.
Срок сдачи: 2 кв. 2025 г.
Площади квартир
Этажность
Класс жилья
Корпусов
Стены