Другие планировки в ЖК Куприн

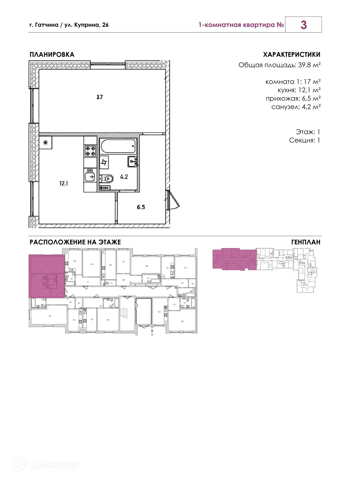
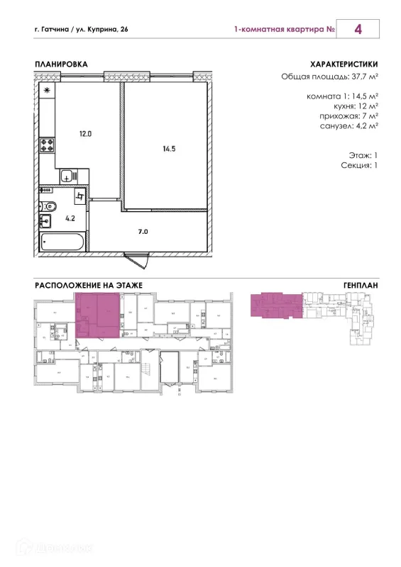
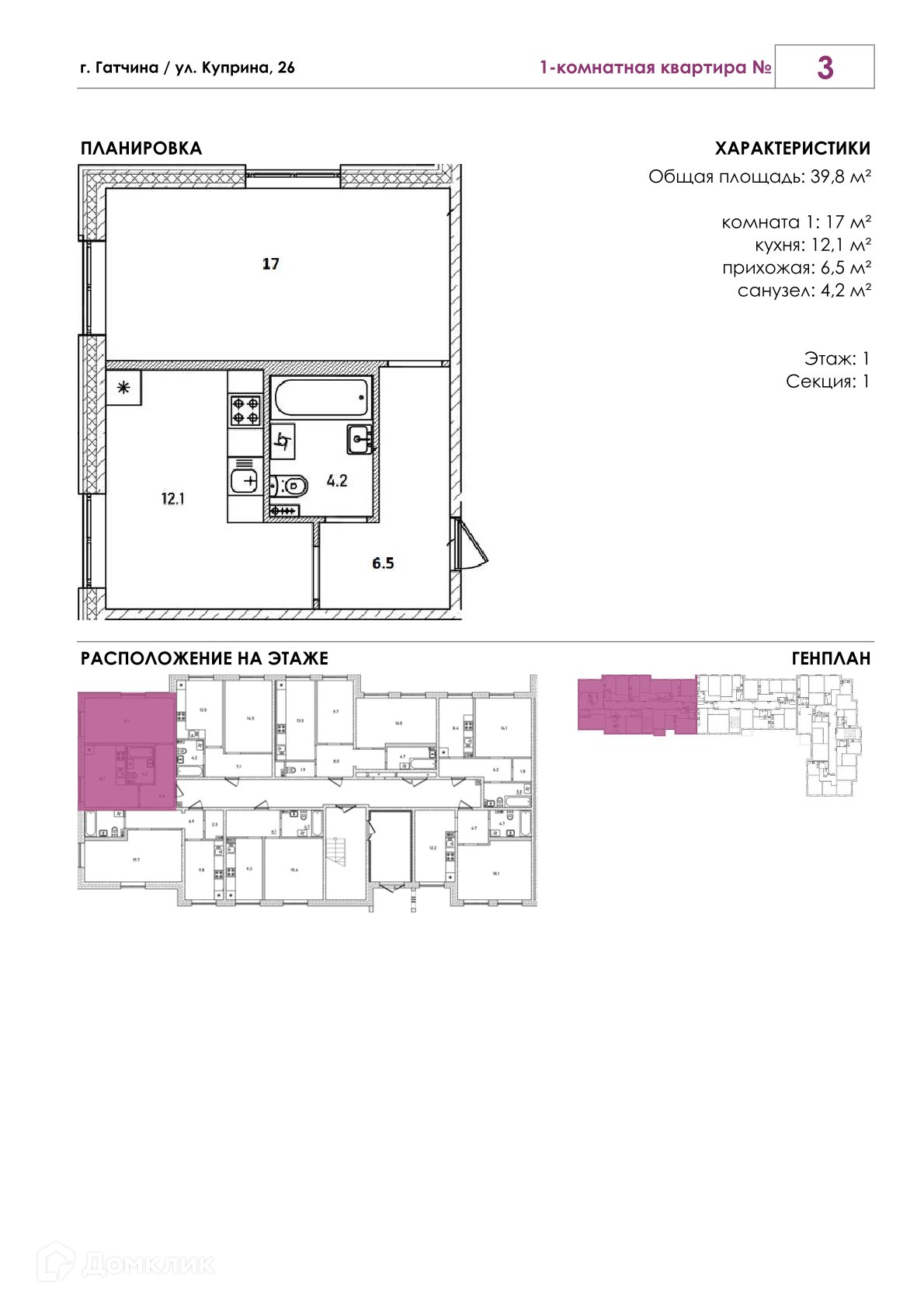
Планировка 1 комн. в ЖК Куприн
37.7 м²

1-комнатная

от 5 089 500 ₽

1 предложение

Смотреть планировку
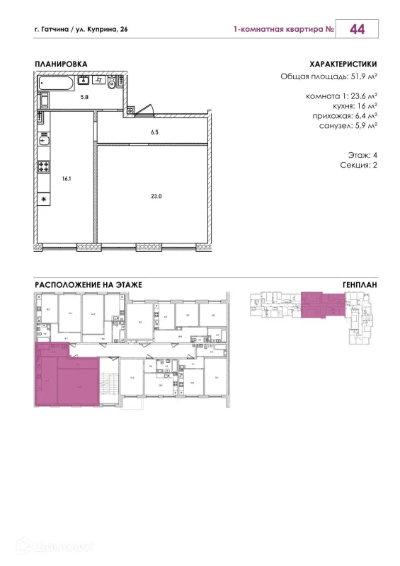
Планировка 1 комн. в ЖК Куприн
51.9 м²

1-комнатная

от 7 006 500 ₽

1 предложение

Смотреть планировку
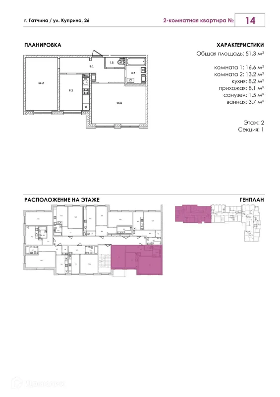
Планировка 2 комн. в ЖК Куприн
51.3 м²

2-комнатная

от 6 925 500 ₽

1 предложение

Смотреть планировку

Расположение

Срок сдачи: 1 кв. 2025 г.

Ленинградская область, Гатчина, Мариенбург, Куприна, 26

Подробнее о ЖК

4.3 Яндекс

Срок сдачи: 1 кв. 2025 г.

34.7 - 68.5 м²

Площади квартир

5

Этажность

Эконом

Класс жилья

1

Корпусов

панельный

Стены