Ленинградская область, Гатчина, Мариенбург, Куприна, 26
Площадь
Жилая
Кухня
Отделка
Класс жилья
Комнат
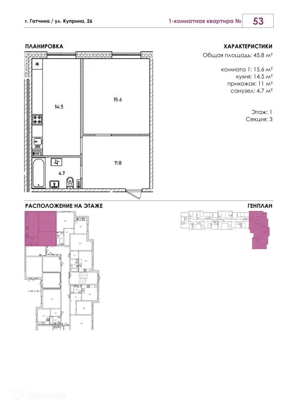
Номер кв.
Этаж
В продаже 2-комнатная квартира в востребованном жилом комплексе "ЖК Куприн" 🏢. Квартира расположена на 4-м этаже 5-этажного дома. Отличный вариант для комфортной жизни.
Для бесплатного бронирования и проверить актуальную стоимость — свяжитесь с нами прямо сейчас! 📞
ЖК «Куприн» является примером использования современных технологий, учитывающих все необходимые элементы благоустройства и гармонично вписывающимся в исторический облик микрорайона. Комплекс представляет собой 4-х этажное здание с 3-мя подъездами в котором размещено 73 квартиры. Конфигурация здания образует тихий, уютный двор в котором размещены площадки для отдыха и занятий спортом, гостевая парковка и хозяйственная площадка. Строительство жилого дома будет осуществлять известная Псковская компания «Скандинавия» в которую входит завод железобетонных изделий «ЖБИ-1» (информация о компании предоставлена с сайта Scandinavia.com). Ключевым направлением работы Scandinavia является создание современных, комфортных и доступных жилых комплексов. В строительстве используются самые передовые и инновационные технологии. Руководство внедряет лучшие мировые практики и опыт на всех предприятиях. Успешно внедрена и несколько лет работает бельгийская производственная линия. Ежегодно проводятся научные исследования качества цемента и присадок, используемых при производстве бетона, что позволяет улучшать качество собственных изделий. Как результат, продукция Scandinavia выгодно отличается повышенной износостойкостью, улучшенной звукоизоляцией, теплопроводностью.
Срок сдачи: 1 кв. 2025 г.
Срок сдачи: 1 кв. 2025 г.
Площади квартир
Этажность
Класс жилья
Корпусов
Стены