Санкт-Петербург, Ланское, Коломяжский проспект, 4 лит А
Площадь
Жилая
Кухня
Отделка
Класс жилья
Номер кв.
Этаж
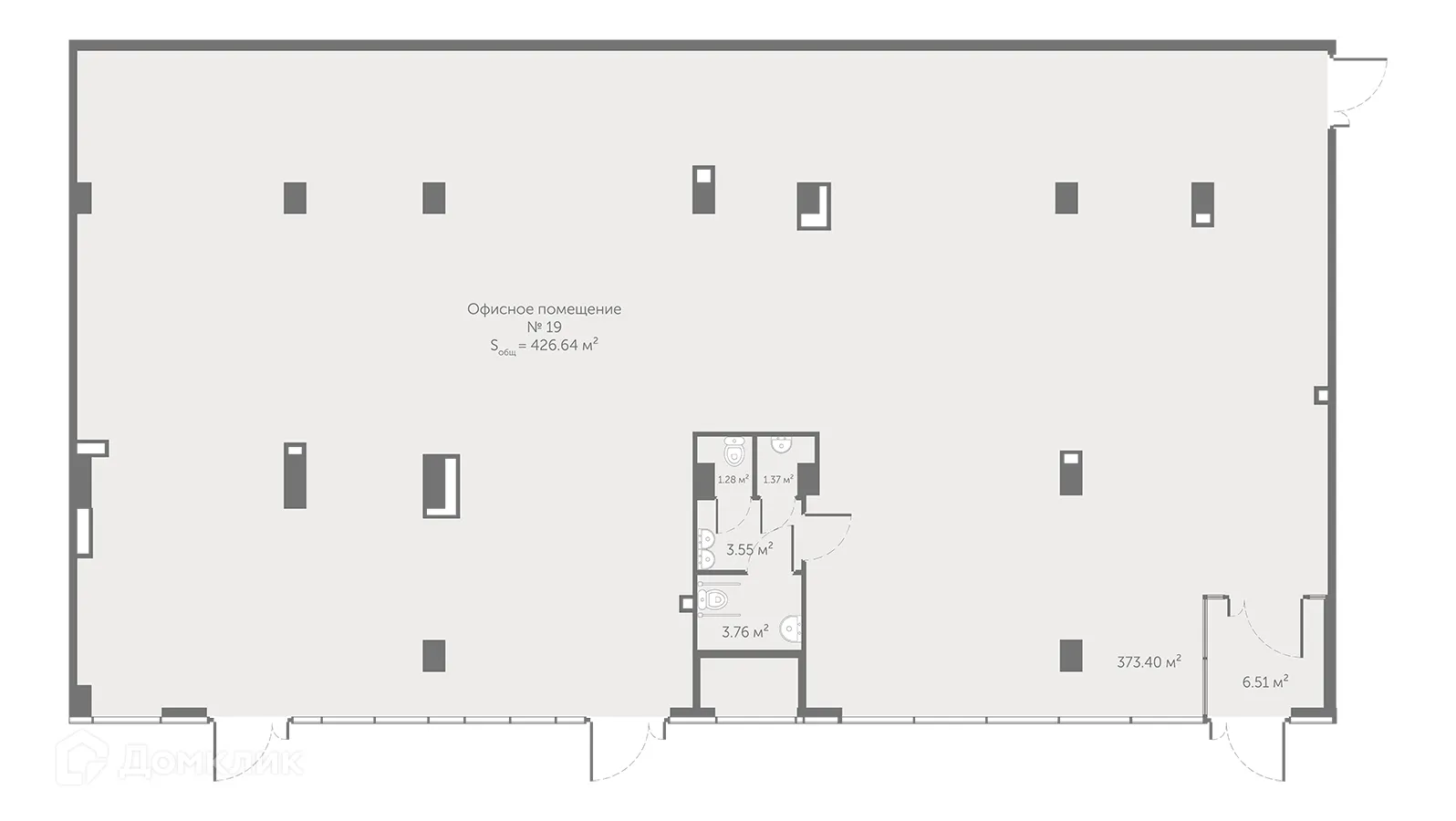
Предлагается Студия в востребованном жилом комплексе "ЖК Zoom Черная Речка" 🏢
Квартира расположена на 1-м этаже 14-этажного дома.
Отличный вариант для семьи.
Удобная планировка: 📐
✅ Общая площадь: 426.64 м².
✅ Уютная жилая площадь: 0 м².
✅ Кухня: 0 м² — идеальна для семейных ужинов.
Преимущества квартиры: ✨
🔧 Вариант отделки: грубая отделка. Готовая база для вашего интерьера.
🌞 Панорамное остекление наполняют помещения природным светом.
🌿 Класс жилья: Бизнес — современные технологии.
Выгодные условия покупки: 💰
💳 Ипотека от 952 639 руб/мес.
🏦 Доступны льготные программы господдержки.
🤝 Эскроу-счета гарантирует надежность.
Для бесплатного бронирования и зафиксировать цену — свяжитесь с нами прямо сейчас! 📞
Параметры новостройки в ЖК Zoom Черная Речка:
• Номер квартиры - 19
• Вариант отделки - грубая отделка
• Площадь - 426.64 м²
• Жилая Жилая - 0 м²
• Площадь кухни - 0 м²
• Класс жилья - Бизнес
• Комнат - Студия
• Этаж - 1
• Дом - 14-этажный
Полезная информация о ЖК Zoom Черная Речка
Zoom Черная речка – это новый комплекс класса бизнес-лайт от крупного федерального застройщика ФСК. Zoom Черная речка расположен в престижном Приморском районе непосредственно на берегу Черной речки. В нем есть все необходимое для жителей разных возрастов и интересов – от отапливаемого подземного паркинга и круглосуточного видеонаблюдения до коворкинга на открытом воздухе, интерактивных детских площадок и зон отдыха.
Собственная набережная будет оборудована деревянными настилами и скамейками, благодаря чему вы сможете с комфортом проводить время у воды. Лобби на первом этаже – современное и стильное пространство, где вы можете выпить кофе, подождать такси или поработать с ноутбуком. В отдельных лотах предусмотрено все для оборудования камина. Новый уровень уюта в вашем доме. Приобретение возможно в том числе с помощью ипотеки и рассрочки.
Срок сдачи: 4 кв. 2025 г.
Срок сдачи: 4 кв. 2025 г.
Площади квартир
Этажность
Отделка
Класс жилья
Количество корпусов
Тип стен